Инструкция заземления
Так как не во всех частных домах или дачах сделан защитный заземляющий контур, то для того, чтобы правильно заземлить бойлер, следует сделать монтаж контура. При желании такую работу можно сделать самостоятельно. Для этого нужно взять готовую схему установки системы, которая будет лучше подходить в определенных условиях. Самые распространенные схемы – треугольник и квадрат. Такими фигурами называют схему с соответствующим количеством электродом и их размещением. Например, устанавливая защитный заземляющий контур по схеме треугольника, необходимо приготовить три длинных стальных электрода. Каждый из них должен быть не короче 2 м, 15 мм в сечении. Можно использовать медь, но такой материал очень дорогой.
На расстоянии 4-5 метров от распределительного щитка нужно начертить равносторонний треугольник (1,2-1,5 м сторона). Затем необходимо вырыть небольшое углубление и в местах вершин условного треугольника нужно забить стальные электроды на глубину 1,8 м. Потом нужно эти электроды нужно соединить в верней части при помощи сварки. Для этого берутся стальные шины с толщиной в 4мм, а их длина должна быть немного больше стороны размеченного треугольника. После этого подключается к конструкции заземляющий проводник из однородного металла и прокладывается к распределительному щитку дома. Закрепив его надежно к заземляющей установке, можно закапывать траншею.

Схема устройства электрического водонагревателя
Заземлить бойлер можно будет только после проверки защитного контура при помощи специальных приборов. Также при желании можно приобрести готовый комплект для заземления с соответствующими стандартами. Когда установка конструкции будет завершена, можно перейти к следующему основному этапу работы.
В квартире или же частном доме должен быть проложен трехжильный кабель с проводом для заземления. Он может иметь зеленый, желтый или желто-зеленый цвет. Такая цветовая маркировка не позволит вам спутать провода с другим назначением. Если в доме или квартире проложен двухжильный кабель без заземляющего провода, следует сменить старую проводку.
Большинство современных бойлеров имеют специальную клемму, которую подключают к заземляющему контакту на розетке. На вилке бойлера также может быть особый контакт, и если ее подсоединить к электрической сети, тогда он будет подключен к заземляющему контуру. Наличие клеммы упрощает процесс работы. Затем необходимо сделать проверку электрической сети, отходящей от распределительного щитка на этаже (улице в частном доме).

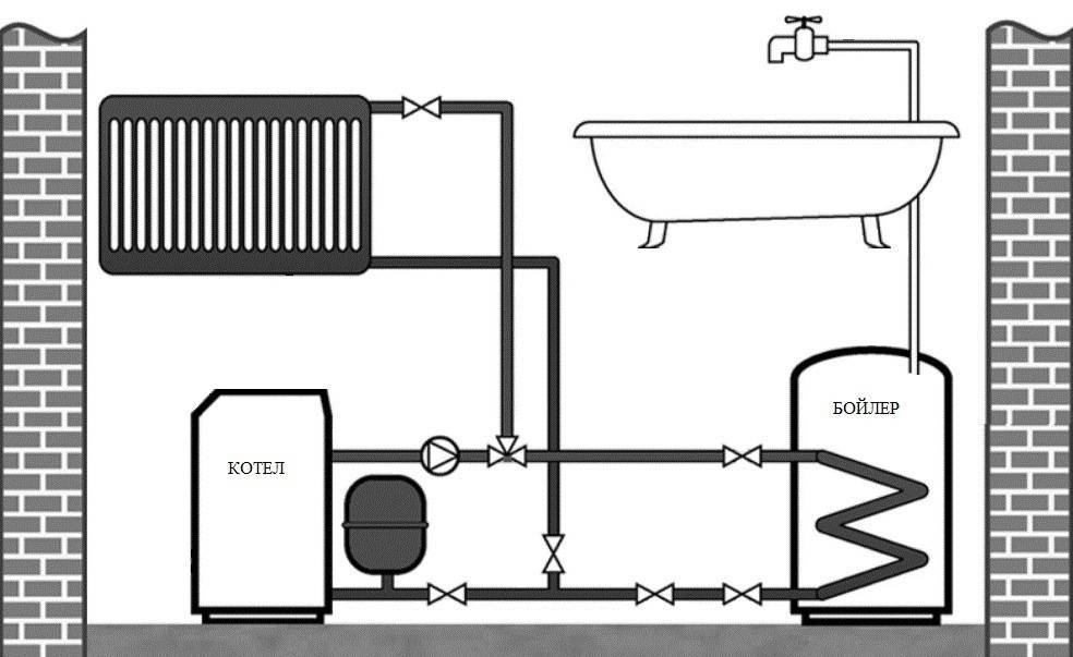
Правильное подключение бойлера с накопителем в ванной
Обязательно в стене должна быть вмонтирована особая розетка нового образца, которая имеет защемляющий элемент. Она должна располагаться от места размещения бойлера на расстоянии более полуметра, и на высоте более 80 сантиметров от уровня пола. Проложенный трехжильный кабель нужно расщепить на отдельные провода, чтобы подсоединить их к клеммам на розетке и распределительном щитке или трансформаторе.
Работа должна проходить с обесточенной электрической сетью
Очень важно соблюдать правила техники безопасности. Обесточив помещение можно сделать подключение проводников кабеля к соответствующим точкам в розетке и распределительном щитке. Необходимо определить назначения каждой жилы, чтобы все получилось правильно
Когда все соединения были закреплены, нужно включить электроснабжение, сделать проверку наличия напряжения в сети при помощи отвертки-пробника. Если у определенной модели водонагревателей имеется готовая встроенная система для заземления, тогда нужно подключить провод «земли» напрямую к специальному зажиму на корпусе устройства
Как заземлить водонагреватель в квартире?
Заземление водонагревательных приборов нужно не только для обеспечения безопасности жизни и здоровья ваших близких, но и для того, чтобы устройство прослужило как можно дольше. При отсутствии заземления велика вероятность того, что произойдет замыкание фазы и утечка тока, к тому же стоит помнить, что вода, проходящая через нагревательный элемент, содержит в себе электрические заряды. (См. также: Как установить водонагреватель своими руками)
А если подключить водонагреватель к металлическим или металлопластиковым трубам, то он будет аккумулировать в себе блуждающие токи вкупе с зарядами. Такой процесс способен вызвать преждевременную коррозию стенок нагревательного устройства и вывод его из рабочего состояния.
Заземление водонагревателя в квартире происходит следующим образом:
Осмотрите корпус водонагревателя — практически каждое подобное устройство, работающее за счет электричества, имеет комплект для подключения заземляющей системы. Он включает в себя не только вилку, но гайку и шпильку с шайбами.
Проверьте электрическую сеть, ведущую от распределительного щита, расположенного на этаже, на предмет присоединения всех металлических деталей к системе заземления.
(См. также: Как выбрать электрический водонагреватель)
Установите розетку с заземляющим элементом на расстоянии не менее 50 см от будущего месторасположения водонагревателя. При этом учитывайте, что она должна находиться над уровнем пола не ниже, чем на 80 см.

Проложите трехжильный кабель от распределительного щита до розетки. Жилы в проводе могут быть медными, рекомендуемое сечение – 1,5 мм. Если есть возможность – делайте скрытую прокладку кабеля, предварительно проштробив пол и/или стены. Однако, вполне допустимо протянуть его, заключив в специальный пластиковый желоб.
После того, как кабель будет протянут, расщепите на обоих концах жилы для того, чтобы присоединить их к клеммам распределителя и розетки.
(См. также: Какие водонагреватели самые надежные)
Теперь можно начинать процесс подключения розетки. Проводники кабеля различаются по цвету, поэтому будьте внимательны.
Обесточьте квартиру и подсоедините провода к розетке, соблюдая цветность.
Подключите проводники к распределительному щитку. Когда будете крепить заземляющий провод, используйте специальный болт.
После того, как все провода будут закреплены, включите распределительную автоматику и проверьте розетку индикатором на наличие напряжения в ней.
(См. также: Подключение накопительного водонагревателя своими руками)
Если же водонагреватель имеет отдельную систему заземления, то подключите провод непосредственно к специальному зажиму на его корпусе.
Этапы устройства заземления водонагревателя

Вариант заземления водонагревателя.
Инструкция по подключению бойлера к сети требует обязательного заземления корпуса прибора, на котором специально для этих целей предусмотрена специальная шпилька с шайбами и гайкой. Если прибор не заземлять, то сервисный центр не поставит гарантию на него.
Заземление к водонагревателю осуществляется посредством специального контакта в вилке и розетке. Нередко для того чтобы сделать заземление, водонагреватель оснащается специальной клеммой. В этом случае заземлить прибор не составит особого труда.
При самостоятельном заземлении очень часто допускается одна и та же ошибка, которая заключается в соединении розетки и бойлера напрямую через фазу. Делать это ни в коем случае нельзя. В противном случае возрастет вероятность аварийного пробивания фазы. В большинстве квартир, построенных во времена СССР, используется двухжильная проводка, которая не предназначена для подключения заземления. В связи с тем что для современных бытовых приборов, в том числе бойлера, необходим трехжильный кабель, старую проводку нужно сменить на новую.

Схема подключения бойлера.
Важно! Самым распространенным способом заземления водонагревателя является замыкание заземляющего провода на любой металлический предмет, который, в свою очередь, связан непосредственно с землей. Чаще всего в качестве такого металлического предмета используется водопроводный или отопительный стояк. Что касается квартир в панельных домах, то сделать заземление в этом случае можно к закладным металлическим деталям, которые связаны с землей посредством сети арматур
Она находится в бетонных плитах. Последний вариант считается наиболее благоприятным, так как он не способствует разрушению водопроводного и отопительного стояка
Что касается квартир в панельных домах, то сделать заземление в этом случае можно к закладным металлическим деталям, которые связаны с землей посредством сети арматур. Она находится в бетонных плитах. Последний вариант считается наиболее благоприятным, так как он не способствует разрушению водопроводного и отопительного стояка
Чаще всего в качестве такого металлического предмета используется водопроводный или отопительный стояк. Что касается квартир в панельных домах, то сделать заземление в этом случае можно к закладным металлическим деталям, которые связаны с землей посредством сети арматур. Она находится в бетонных плитах. Последний вариант считается наиболее благоприятным, так как он не способствует разрушению водопроводного и отопительного стояка.
Если же произвести замену проводки невозможно, можно решить проблему двумя способами:
- на расстоянии 30 см от пола по всему периметру комнаты к стене прикрепить металлическую рейку. Возле каждой розетки в рейку вставить болт с плоской шляпкой таким образом, чтобы рейка плотно прилегала к стене. Из розетки выводят провод заземления, после чего он оголяется и наматывается на болт. В самом конце все нужно зафиксировать с помощью гайки;
- из розеток, которые нуждаются в заземлении, выводится кабель внешним способом и тянется до плинтуса. В определенном месте производится соединение цепи проводов для заземления, после чего они подключаются к электрощитку.

Электрическая схема водонагревателя.
Прежде чем заземлить водонагревательное устройство, необходимо подготовить следующие инструменты и материалы:
- стальная проволока;
- железные штыри;
- болты с шайбами и гайками;
- перфоратор;
- сверло;
- молоток;
- инверторный сварочный аппарат;
- гаечные ключи;
- заточный станок.
Нужно ли заземлять проточный водонагреватель?
Главная роль заземления (проводника, соединяющего электроводонагреватель с землей) заключается в том, чтобы обеспечить безопасность жителей, использующих электроприбор. Защитная функция призвана исключить поражение людей электрическим током при прикосновении к металлическим поверхностям, которые оказались под напряжением. Странно, что этот довольно широко известный факт часто игнорируется. Оголенных проводов боятся все, а незаземленные предметы считаются чуть ли не нормой. С точки зрения безопасности пользователей электроприбора, ответ на вопрос о том, надо ли заземлять водонагреватель, утвердительный.
Надо ли говорить, что если не заземлять водонагреватель, срок его эксплуатации может существенно снизиться. В большинстве случаев бак нагревателя производится из нержавеющей стали. Это отличный долговечный материал, который, однако, подвержен негативному воздействию блуждающих токов, образующихся в электронагревателе без подключения к земле. Токи проходят через тонкую нержавейку и оставляют в ней микропоры. Нужно ли объяснять, что если не заземлять водонагреватель, постепенно поры увеличатся и приведут к потере герметичности. Независимо от того, где бак стоит (в квартире или на даче) и как часто используется, срок его службы значительно сократится.
Таким образом, узнав, как правильно и безопасно заземлить водонагреватель, можно получить некий «громоотвод» для вредоносных микроразрядов блуждающих токов, образующихся в процессе работы данного оборудования.
Откуда берется опасность?
Исправный бойлер не представляет угрозы. Все его токопроводящие детали надежно изолированы как от воды, так и от корпуса. К тому же на корпус нанесено покрытие, не проводящее электрический ток. Аналогичные покрытия имеют корпуса компьютеров, стиральных машин. Конечно, они не призваны выдерживать номинальное напряжение сети, поэтому защищают лишь отчасти.

Основным и самым слабым с точки зрения надежности изоляции элементом бойлера является ТЭН – его нагревательный элемент. Работает он по определению при высокой температуре. Поэтому изолятор его со временем стареет и может быть разрушен.
Это приводит к появлению на корпусе ТЭНа опасного для жизни потенциала. Поскольку корпус ТЭНа связан с корпусом бойлера, то потенциал переносится на него тоже.
Но не это главное – обычная водопроводная вода изолятором не является. Она проводит электрический ток. Поэтому и на кранах, и в ванной через воду появляется опасное напряжение. Это может привести к электрическому удару.
Стиральная машина тоже имеет ТЭН. Со всеми вытекающими отсюда последствиями.
Поэтому эти устройства без заземления включать запрещено.
Роль заземления
Седьмое издание ПУЭ определяет, что заземление является преднамеренным электрическим соединением любой точки сети, электрической установки или электрооборудования с контуром заземляющего устройства. Последнее представляет собой систему «заземлитель – заземляющие проводники». Выделяют защитное и рабочее заземление.
Защитное
Через бойлер постоянно циркулирует вода, которая, не являясь дистиллированной, способна проводить электрический ток. В случае пробоя изоляции тэнов водонагревателя либо его электропроводки, металлические части корпуса окажутся под напряжением, ток начнет протекать и по воде.
Случайное прикосновение к бойлеру, купание, мытье рук или посуды может иметь травмирующие последствия. Степень нанесенных повреждений будет зависеть от силы тока и продолжительности его воздействия на организм человека. Результат от простой «встряски» до летального исхода. От такого сценария развития событий и призвана предохранять система защитного заземления.

Защитное заземление
Рабочее
Проходящий по токоведущим частям бойлера электрический ток создает собственное электромагнитное поле. Под его воздействием в металлических деталях водонагревателя образуются блуждающие токи, способствующие коррозии, разрушению этих частей. Такое же воздействие оказывают поля от других домашних электроприборов, которыми заполнено окружающее пространство. Некоторые чувствительные люди способны воспринимать это в виде слабого пощипывания. С блуждающими токами призвано бороться функциональное (рабочее) заземление.
Роль заземляющих установок сводится к следующему:
- защите от электрических поражений;
- отводу блуждающих токов;
- способствованию нормальному функционированию электрооборудования.
Проведение защитных мероприятий такого рода особо актуально для влажных помещений, в которых зачастую и эксплуатируется водонагреватель. Подсоединение этого прибора к заземляющей сети сведет возможные негативные воздействия к нулю. В случае пробоев будет срабатывать максимально-токовая защита установленного на линии автомата (во время коротких замыканий на корпус), указывая на имеющуюся проблему.
Почему надо делать заземление
Водонагреватель постоянно контактирует с водой, а вода, если она только не дистиллированная, прекрасно проводит ток. Нарушение электрической изоляции может привести к тому, что человека, принимающего ванну или моющего посуду, ударит током. Последствия удара могут быть не просто болезненными, но даже смертельными. Случается, что электрический ток поражает нервную систему, и человек теряет память, трудовые навыки, способность к обучению.
Вторая причина, почему надо делать заземление в квартире, связана с блуждающими токами. Блуждающие токи возникают в металлических частях водонагревателя. Если их не отводить, то они будут способствовать коррозии и разрушению металлических элементов. К тому же они ощущаются человеком. Многим знакомо чувство легкого пощипывания от воздействия слабым током.
В частном доме или на даче заземление может спасти электрический водонагреватель от удара молнией во время грозы.
Оно возьмет удар на себя, проведя ток в землю, и ваш бойлер останется невредим.
Заземление водонагревателя – вопрос безопасности
Как сделать заземление
Правильно все организовать можно с помощью наших рекомендаций. Осмотрите водонагреватель и найдите клеммы для заземления. Все современные приборы ими оснащены.

Приобретите розетку с тремя отверстиями и влагостойким корпусом, особенно при установке в ванной комнате.
- Монтируйте розетку на расстоянии 50-80 см от пола и водонагревателя.
- Нужно провести трехжильный кабель из меди от щитка к розетке. При желании можно встроить проводку в стену, проштробив канал.
- Отключите электричество и выполните подключение проводов к розетке. Правильно распределить жилы поможет их расцветка. Смотрите картинку ниже:
фото 4 - Подсоедините кабель земли к шине на щитке.

Что делать в частном доме
В частном секторе или на даче организовать заземление нужно самостоятельно. Вам понадобятся навыки использования сварочного аппарата. Также три металлических штыря (уголка, трубы) высотой 1,5 метра и диаметром 15 мм.

Выберите участок на расстоянии 1,5 метра от дома. В дальнейшем здесь никто не должен ходить.
- На выбранном месте выкапывается траншея в форме треугольника. Каждая его сторона не должна превышать три метра. Также прокапывается траншея от угла дома.
- В углах разместите по одному штырю.
- К верхней части приварите болты М8 или М10.
- Вбейте штыри в землю так, чтобы осталась только верхушка размером 5 см.
- Выберите место на стене дома. Лучше выбирать точку на расстоянии двух метров от щитка и 10 см от пола.
- Проделайте отверстие перфоратором.
- Возьмите проволоку из стали (6 мм) и подсоедините к клемме нагревателя.
- Проведите проволоку по стене к отверстию, а затем к штырю на улице.
- Наденьте на болт шайбу и накрутите виток проволоки. Закрепите сверху другой шайбой. Так проделайте с каждым штырем, после чего закольцуйте.
- Засыпьте траншею грунтом, уплотните поверхность.
- Теперь замеряйте сопротивление контура. В норме должно быть менее 4 Ом.
Осталось подключить водонагреватель, залить воду и запустить тестовую работу.
Как вы поняли, провести заземление можно как в хрущевку, так и в частный сектор. Это важная часть работы электрического прибора. Смотрите вижео, чтобы сделать это было еще проще:
Чтобы как можно лучше в частном доме заземлить бойлер, нужно сделать качественный контур заземления и правильно его подключить.
Для этого нужны будут следующие инструменты и материалы:
- Металлический уголок или профиль
с шириной стороны 5 см. Понадобится около 18 метров для электродов и их соединения. - Металлическая проволока или полоса
, шириной не менее 3 мм для подведения заземления к щитку. - Электросварка
, которой будет свариваться конструкция контура. - Болгарка
для резки уголков и проволоки. Перфоратор для сверления отверстия в доме для введения заземления. - Кувалда
, которой будут забиваться профиля в землю. - Трехжильный кабель
для проведения электричества в доме от щитка к розетке. - Современная розетка с клеммой для заземления
. Автомат соответствующий мощности накопительного водонагревателя. - Отвертка, пробник, нож.

Прежде всего, надо выбрать место для будущего размещения контура. Оно должно находиться не дальше пяти метров от щитка. Главное, чтобы сверху не ходили люди и домашние животные, так как в случае пробоя электричество уйдет в землю вокруг. Если в это время там будет кто-то проходить, его ударит током. Можно сделать своими руками сверху этого места декоративное украшение из камней или специально огородить его забором.
Способы заземления бойлера
Наиболее примитивным методом заземлить бойлер в помещении является проводное соединение корпуса с любой металлической деталью, конструкция которой уходит под землю. Подойдет для этой цели, например, батарея центрального отопления. В современных реалиях у жильцов все более популярными становятся пластиковые трубы, в этом случае необходимо проверить стояк, возможно именно он является цельнометаллическим
К тому же важно знать, что заземлять электроприборы на трубопровод и прочие металлические конструкции категорически запрещается, поэтому данный способ организации защиты мы настоятельно рекомендуем обходить стороной (показан на фото ниже)!

Клеммы для присоединения контакта для заземления присутствуют у большинства современных электроустановочных устройств. Это касается, например, розеток с «усиками», которые как раз и являются проводником для «земли». Чтобы сделать грамотное подключение водонагревателя необходимо:
- Произвести установку розетки с контактом для заземления. Ее расположение должно превышать 80 см от уровня пола и полметра от самого бойлера.
- В случае, если дом старый, в нем проведены двухжильные провода. Их необходимо заменить на трехжильные. Одна из жил должна иметь зелено-желтую изоляцию, именно ее правильно пускать на заземление. Провод идет до самого электрощита, который, в свою очередь, также должен быть заземлен.
- Чтобы выполнить проведение нового кабеля своими руками, придется заново сделать штробу для него. Это трудозатратный процесс. Есть более простой выход с использованием кабель-каналов, однако применять его в квартире — не комильфо.
- Отключив вводной автоматический выключатель, нужно присоединить нужные жилы к клеммам розетки (соблюдая цветовую маркировку проводов относительно «земли»)
- Подключить оставшиеся выводы к электрощиту. При этом земля подключается на специальную шину.
Если проводка двухпроводная, как, например, в хрущевке, можно пустить третью жилу через кабель-канал, избежав тем самым необходимость штробления. Это позволит избежать грязи и объемной работы, но выглядеть будет не слишком правильно. Однако это один из часто реализуемых вариантов, когда кабель двухжильный.
Еще один эффективный способ, позволяющий заземлить бойлер — подключить на линию водонагревателя устройство защитного отключения либо дифференциальный автомат с номиналом 10 либо 30 мА (ток утечки). В этом случае, даже если нет заземления в квартире, при возникновении опасной ситуации удара током удастся избежать, так как сработает УЗО и вся линия будет отключена от сети. О том, как подключить УЗО в квартире мы рассказывали в отдельной статье. Про подключение дифавтомата мы также говорили отдельно.

Бывают случаи, когда жильцы используют водонагреватель в ванной только отключенным. То есть вначале вода нагревается, затем бойлер отключается, и только после этого уже используется нагретая жидкость. Способ имеет право на существование, но крайне неудобен – вода остывает, ее может не хватить на весь процесс мытья, да и есть риск забыть отключить нагреватель вовремя. Заземление решит все эти проблемы.
В качестве совета – нужно покупать водонагреватели наиболее высокого качества. Они имеют хорошую изоляцию трубчатого электронагревателя, что позволит свести на нет возможность пробоя. О том, как выбрать накопительный водонагреватель для дома, мы рассказали в отдельной статье.
Процесс подключения заземляющего контакта для бойлера на даче или в частном доме полностью аналогичен описанному для квартир. Исключением служит лишь то, что саму конструкцию, которая сможет заземлить, необходимо возвести самостоятельно и строго руководствуясь правилами установки электрооборудования. О том, как сделать заземление в частном доме, мы рассказывали в отдельной статье.
В заключение хотелось бы отметить, что необходимость грамотного подключения заземления для бойлера, как и любого другого мощного электроприбора, обусловлена в первую и главную очередь безопасностью. Именно заземляющий контакт водонагревателя спасет жильцов от потенциальной возможности возникновения трагедии, а также обеспечит безопасность с точки зрения ликвидации риска пожара. Не стоит играть с судьбой, проще заземлить бойлер и сделать свою жизнь спокойнее. Надеемся, наша пошаговая инструкция по заземлению водонагревателя в квартире и частном доме была для вас полезной и помогла самостоятельно выполнить монтаж заземляющего контура!
Наверняка вы не знаете:
- Как сделать заземление в квартире своими руками
- Для чего нужна система уравнивания потенциалов в ванной комнате
- Как выбрать УЗО для квартиры
Опубликовано: 18.04.2017 Обновлено: 06.09.2019
УЗО в системе TN-C
Очень часто возникают вопросы о возможности подключения УЗО в системе заземления TN-C и его эффективности. Варианты данной системы могут быть трехфазными с четырьмя проводами или однофазными – двумя проводами. В первом случае провода состоят из трех фазных и одного нулевого, а во втором – из двух проводников фазы и нуля.
Большинство специалистов безоговорочно рекомендуют установку защитных устройств в таких системах, поскольку именно они срабатывают при токовых утечках, опасных для человека. Однако существует так называемая «оппозиция», по мнению которой установка УЗО в системе TN-C не только неэффективна, но и опасна. Это связано с тем, что защита срабатывает лишь при непосредственном касании токоведущих частей, а не заранее, с появлением тока утечки. Кроме того, в домах со старой проводкой такие устройства будут отключаться без видимых причин.
Большинство электриков и хозяев квартир выступают все-таки за установку УЗО. Оно в любом случае не будет бесполезным и в нужный момент сработает, спасая здоровье или даже саму жизнь. Защитное устройство существенно повышает электробезопасность и делает жизнь проживающих людей более спокойной.
Как заземлить проточный водонагреватель в квартире
На вопрос, обязательно ли заземлять водонагреватель, мы ответили выше. Безопасность жильцов дома – не тот случай, к которому можно отнестись легкомысленно. Остался не менее важный момент: как заземлить водонагреватель?
В зависимости от типа жилья или помещения, подход к этому процессу может отличаться. Заземление в частном доме, находящемся непосредственно на земле, не так сложно, как в многоквартирном здании. Как заземлить водонагреватель в квартире, чтобы не нанести вреда оборудованию и не помешать соседям?
Наиболее распространенным в отечественных реалиях не так давно был способ замыкания заземляющего проводника на любой металлический предмет в квартире, который непосредственно связан с землей. Мало кто знал, как правильно заземлить водонагреватель или другие приборы. Идеальными считались водопроводные трубы, система канализации и водоотведения, отопления или даже газоснабжения.
В панельных домах можно заземляться через закладные детали панелей, имеющие связь с землей посредством арматуры внутри бетона. Как выяснилось, со временем именно второй вариант оказался более рационален, ведь он позволял заземлить проточный или накопительный водонагреватель в квартире без вреда для трубопроводных систем, так как блуждающие токи их не разрушают. Кроме того, огромное количество жильцов заменило и продолжает менять железный трубопровод в рамках своих квартир или целых подъездов на пластиковый. Как можно догадаться, трубы из такого материала не подходят для того, чтобы заземлить проточный или накопительный водонагреватель.
Еще один вариант того, как заземлить проточный или накопительный водонагреватель в квартире можно назвать «повторное заземление» или «зануление». Суть его состоит в том, что заземляющий проводник замыкается прямо на «минус» электрической цепи. Делать это надо не в розетке, куда подключается нагревающий бак, а максимально близко к распределительному щитку в подъезде или квартире.
Советы специалистов
Иногда частники, не владеющие навыками устройства заземления, и не разбирающиеся в электрических схемах, не хотят самостоятельно устанавливать электронагреватель, а приглашают для такой работы специализированную бригаду. В этом случае нужно контролировать действия электриков, которые могут недобросовестно подойти к выполнению задачи по устройству заземления
На что обратить внимание:
- Тщательно изучите договор и найдите в нем раздел об устройстве заземления. Если такой раздел есть, то поставив свою подпись под договором, бригадир несет ответственность за хорошую работу заземления, а фактически за жизнь и здоровье вас и ваших близких. Если же такого пункта в договоре нет, то это значит, что бригада не имеет права заниматься устройством заземления.
- Перед началом работ спросите: к чему будет присоединен заземляющий провод бойлера? Если в доме нет заземления, то рабочие могут просто соединить заземляющий провод от нагревателя с нулем, что делать категорически запрещается. Потребуйте от бригады устройство нормального заземления через заземляющий контур.
Проточный водонагреватель должен иметь как заземление, так и подключение через УЗО. При пробое фазы на корпус вы становитесь уязвимым для поражения электрическим током. Поэтому, если у вас нет в доме заземления и вы не можете его сделать, откажитесь от установки проточного водонагревателя.
Заземление водонагревателя в частом доме или на даче
В последнее время очень часто водонагреватели устанавливают на дачах и в частных домах. Это оптимальный вариант, для бесперебойной подачи горячей воды, используемой для нужд жителей дачных или коттеджных поселков.
Перед тем, как заземлить водонагреватель, его необходимо установить на прочной поверхности, зафиксировав с помощью специального крепежа. Бойлер лучше всего устанавливать на панельных или кирпичных несущих стенах. Водонагреватель, расположенный на улице, следует защитить от воздействия внешних факторов навесом.
Заземление водонагревателя требует соблюдения определенного алгоритма действий.
Необходимо выкопать яму неподалеку от распределительного щита, но на расстоянии не менее 5 метров от жилых построек. Канава, глубиной 50 см, должна иметь форму равностороннего треугольника.
По углам ямы вкапываются электроды длиной около 2 метров. Заземляющим элементом в данном случае служат любые металлические предметы: стержень, профиль, уголок и прочее (диаметр стержня – от 15 мм, толщина стенки трубы или уголка – от 4 мм)
Электроды соединяются между собой с помощью металлического профиля проложенного по канаве. Стыковать детали полученной конструкции необходимо используя сварочный аппарат. Проводник, идущий от заземления к щиту, выполняется из такого же профиля.
К металлической полосе с помощью болта крепится проводник, сделанный из стального, медного или алюминиевого провода, сечение которого зависит от электропроводящей характеристики элемента. Вход в щит оснащается медной или стальной шиной, расположенной внутри устройства или снаружи.
После окончания монтажных работ следует осторожно засыпать конструкцию землей с добавлением камней, гравия или щебня и проверить сопротивление контура, показатель которого не должен превышать 4 Ом. Далее следует налить воду в бойлер и проверить работу устройства
Нельзя включать пустой водонагреватель. Перед запуском системы необходимо заполнить емкость водой.
Зачем нужно заземление
Если на корпус, или в емкость с водой, пробьет фаза — полезный электроприбор превратится в настоящего убийцу. Представьте, что вы находитесь в набранной ванне или стоите под включенным душем. А вода неожиданно становится источником питания с напряжением 220 вольт.
Причем попадание напряжения на корпус или в бак с водой происходит не по причине перетертой изоляции проводки, или неисправности платы управления. Любой бойлер оснащен электрическим нагревателем (ТЭНом), который всегда находится в воде. Стоит получить небольшое повреждение внутренней изоляции, или нарушить корпус ТЭНа по причине коррозии, вода сразу попадает под напряжение.
Все разговоры о том, что вода течет по стальным трубам, которые имеют контакт с физической «землей» — беспочвенны.
Во-первых: неизвестно, где находится ближайшая точка контакта трубы с «землей», а вы расположены рядом с бойлером. Так что электроток в первую очередь выберет мокрое человеческое тело в качестве проводника.
Во-вторых: в любом доме, даже старой постройки, большая часть стальных труб давно заменена на полипропиленовые. Так что контакта с «физической» землей может не быть вовсе.
Поэтому, заземление вашего бойлера — вопрос вашей же ответственности и безопасности.
Любой водонагреватель имеет в сетевом шнуре третий провод — для подключения к правильной розетке с заземлением. Кроме того, во многих моделях можно найти выделенный контакт шины заземления. В соответствии с требованиями ПУЭ, провод имеет желто-зеленую маркировку.

Монтаж контура заземления
Для контура потребуются несколько стальных труб или уголков длиной 2–2,5 м. Их нужно заострить и вбить в землю на расстоянии 2–2,5 м друг от друга. Но сделать это не от уровня земли, а выкопать траншею глубиной 0,5 м. На дне ее электроды соединяются стальной полосой сваркой. Швы окрашивается, остальные детали не должны иметь покрытий.

Можно расположить три таких электрода в виде треугольника, можно выстроить их в ряд. Если грунт песчаный, то лучше выбрать расположение в линию и забить больше электродов.
От контура к стене здания выводится стальная полоса с приваренным болтом. К нему присоединяется проводник, идущий к шине РЕ. Находящиеся на открытом воздухе детали окрашиваются в черный цвет.
После монтажа и подключения к шине РЕ желательно вызвать специалистов и провести измерение сопротивления полученного контура. Его нормируют правила ПУЭ. Провести измерение своими руками не получится – нужен специальный прибор.





































