Изготовление циркулярной пилы из ручной дисковой
Для домашнего мастера наличие дома циркулярной пилы — вопрос жизненной важности. Сделать ее вполне реально своими руками
Самый простой вариант сделать циркулярную пилу – это использовать ручную дисковую пилу. Для изготовления станка конструкцию уже имеющейся пилы переделывать не нужно. Достаточно изготовить для нее стол
. Очевидно, что пила будет закреплена под столешницей, а диск через специальное отверстие находится над ней.
Для изготовления стола понадобятся деревянные бруски 40*40 и фанера. Делается квадратное основание с длиной сторон 80 см и высотой 40 см.

В качестве столешницы берется квадратный лист фанеры, лучше всего использовать лакированную или ламинированную — она обеспечивает гладкость и легкое скольжение
. В центральной части делается пропил для диска. По углам заранее просверливаются отверстия для крепления столешницы к столу.
Снизу к столешнице крепится дисковая ручная пила. Легче всего это сделать болтами. Шляпки нужно тщательно утопить в поверхности.

Для удобства использования можно с одной из сторон прикрепить металлический уголок, который послужит продольным упором
. Для его передвижения можно сделать пропилы под прямым углом к диску, а перемещение осуществлять, ослабляя и затягивая болты, которые фиксируют этот упор.

Циркулярка из электропилы – это простой и недорогой вариант для домашнего использования. Конечно, при установке инструмента толщина столешницы украдет немного от диска, но в целом, для бытовых нужд этого варианта вполне хватит.
Стоимость пиломатериала достаточно высока для большинства частных мастеров, занятых в частном строительстве, что вынуждает их проявлять чудеса изобретательности. Используя простые технологии распиловки бревен, можно не только экономить деньги, но эффективно и рационально использовать все имеющиеся личные ресурсы.
В первую очередь это касается древесины и оснастки, потому что именно они закладывают основу успешной работы. Отличной альтернативой стационарной пилораме является из электропилы, которую можно сделать своими руками
.
Устройство дисковой пилорамы на базе электропилы
Конструктив любой самодельной пилорамы на основе электропилы подразумевает наличие:
рамного элемента – несущая деталь, которая соединяет воедино все другие запчасти;

- моторной части – желательно остановиться на трехфазных модификациях электропил: бытовые модели, питающиеся от сети с напряжением 220 В, могут оказать маломощными;
- режущей гарнитуры – диск инсталлируется в одной из плоскостей – горизонтальной или вертикальной;
- несущего узла – для бытовых задач сгодится обычный верстак или стол, по которым бревна будут подаваться руками. Для более сложных конструкцию дополняют мобильной кареткой;
- регулировочного механизма – контролирует электросхему самоделки, запускает и выключает мотор. Чаще всего располагается на раме.

Второй вариант как сделать пилораму с бензопилы
Еще один простой вариант, как сделать пилораму для своей бензопилы, который предусматривает применение следующих расходных материалов:
- Швеллер размером 10 на 5 и длиной не менее 5 метров. Длина влияет на размер распиливаемых бревен. Чем больше размер бревен, тем и длина швеллера должна быть соответствующей
- Стальной уголок размером 5х5 см
- Стальная трубка до 1 метра и диаметром 15-20 мм
- Крепежные детали в виде болтов с гайками
Принцип изготовления второго варианта пилорамы заключается в том, что швеллер является направляющей для движения инструмента. В качестве подвижных роликов применяется уголок, который располагается на верхней части швеллера. К уголкам, которые между собой жестко соединены, крепится трубка, а к ней фиксируется бензопила.
На фото видно, как выглядит готовое изделие для распиливания бревен. Как ним пользоваться, также просто, как и изготовить. Расположить на верхней части заготовки, отмерить нужный размер доски (толщину конечного изделия), завести агрегат и пройтись по бревну от начала до конца. Решающую роль играет время, которое нужно уделить, чтобы правильно выставить инструмент, однако такой недостаток окупается простотой конструкции агрегата.
Переделка пилы
Инструменты и материалы:
Схема каретки для циркулярной пилы.
- цепная пила;
- ролик металлической тонкий;
- насадка для фрез;
- понижающий редуктор;
- сварочный аппарат.
Электрической пилы и бензопилы – это подарок из 20 века, который очень гармонически вписывается в жизнь, но бывают такие ситуации, когда и их лучше переработать, что довольно не просто. Заблаговременно следует учитывать, что данная переделка носит сиюминутный нрав, но при желании можно раз за разом ее повторять без какого-нибудь вреда (подмена будет добиваться некого времени).
Для того чтоб вышла циркулярка, необходимо только в самом конце стрелы приварить подвижное колесо, а сам конец срезать. Колесо должно совершенно повторять контур отрезанного элемента, чтоб цепь при движении не натягивалась и не спадала.
С боковой стороны к колесу крепится переходник для фрез. Данный переходник съемный, чтоб при распиловке цепью не появлялось затруднений.
При высококачественной доработке колесо никак не будет вредить рабочим качествам бензопилы при отсутствии в этот момент фрез. К тому же базисная рабочая скорость полностью позволяет обойтись без суровых посторониих доработок.
Какие самоделки из бензопилы можно сделать?
Бензопила — очень удобный инструмент для изготовления самоделок. Приспособив её на специальную платформу с колесами, и соединив цепь с валом, на котором будут установлены ножи, можно получить мощную газонокосилку. Кстати, чтобы долго не заморачиваться, на вал можно установить звёздочку от заднего колеса велосипеда. 
Кроме того, из бензопилы можно сделать отличную пилораму, поскольку переделывание данного инструмента, в этом случае, также сводится к минимуму. 
Вообще, все самоделки из бензопилы, можно разделить на две большие группы:
- В первую группу попадают те самоделки, при изготовлении которых практически нет нужды разбирать и модернизировать бензопилу;
- Ко второй группе самоделок, относится всевозможная техника: снегоуборочные машины, мопеды, аэросани, квадроциклы и т. д. Другими словами говоря, сложные механические устройства, для изготовления которых придется кардинально разобрать бензопилу, сделать водяную или воздушную систему охлаждения, в общем, полностью изменить этот бензиновый инструмент.
Рассмотрим, что можно сделать из бензопилы, что обязательно пригодится в домашнем хозяйстве. 
Так, например, на основе бензопилы «Дружба» можно сделать следующие самоделки:
- Мощный лодочный двигатель;
- Бензиновую болгарку;
- Пилораму;
- Мотокультиватор;
- Газонокосилку.
Если дело касается автомобильных самоделок, то из практически любой бензопилы, можно сделать: 
- Мопед, если установить бензопилу на велосипед;
- Снегоход и аэросани;
- Снегоуборщик;
- Квадроцикл;
- Самокат.
Конечно же, вторая группа самоделок из бензопилы, требует основательного подхода и полного изучение конструкции. 
Также, потребуется докупить все необходимые материалы, а в некоторых случаях, не обойтись и без сварочного аппарата.
Пилорама из бензопилы
Наиболее простой в изготовлении, является самодельная пилорама из бензопилы Урал, Тайга или Дружба. Суть работы самодельной пилорамы заключается в том, что имеется одна большая направляющая, по которой на подвижных салазках, взад и вперёд, двигается бензопила. 
В качестве направляющей, можно использовать рельсу или несколько длинных, но ровных металлических уголков. Платформа, на которую впоследствии будет закреплена бензопила, изготавливается из куска толстой стали, толщина которой должна быть не менее 5 мм.
Особого внимания заслуживает подвижная часть пилорамы, та, посредством которой платформа и осуществляет свое движение вдоль направляющей. В качестве роликов, здесь можно использовать металлическую трубу с прорезиненной поверхностью
Очень важно, чтобы ширина подвижной части совпадала бы с шириной направляющей
Как видно на фото, бревно, расположенное рядом с пилорамой, довольно легко разрезается на несколько частей, посредством движущейся по направляющей бензопилы. Таким образом, можно прилично сэкономить на покупке пилорамы, при этом, как видно, бензопилу практически не нужно каким-то образом переделывать, разбирать и т. д.
Мотоблок из бензопилы
Как было сказано выше, из бензопилы можно сделать различные самоделки для дома и дачи. Одними из таких самоделок, являются косилка и мотоблок. С косилкой из бензопилы дела обстоят не так сложно, как с мотоблоком, для изготовления которого придется варить металлическую раму, после чего, приспосабливать к ней два колеса сбоку. 
Принцип изготовления мотоблока из бензопилы заключается в использовании нескольких звёздочек, которые могли бы передавать крутящееся усилие ножам. Для этих целей звёздочки располагаются по бокам металлического вала, на котором приварены несколько ножей. 
Самодельный мотоблок из бензопилы Урал или Дружба, станет настоящим помощником для тех, кто имеет достаточно большой по площади огород. Может такой мотоблок и не будет отличаться большой мощностью, однако его вполне хватит для того, чтобы решить основную задачу по обработке земли.
Цепная электропила из болгарки: пошаговая инструкция
Для того, чтобы воссоздать цепную электропилу на базе работающей болгарки, нам будут нужны:
- сама болгарка;
- ведущая звездочка, которую лучше всего купить новую, но при наличии исправной запчасти со старой пилы можно ограничиться и б/у вариантом;
- металл для создания кронштейна, на который подсоединится направляющая;
- комплект пильной гарнитуры из шины и цепи;
- набор инструментов, включая дрель;
- болты.
Процесс сборки выглядит так:
- откручивают пильный диск с болгарки;
- делают отверстия в нижней части металлического кожуха прибора;
- болтами присоединяют кронштейн к защитному щитку;
- на вал двигателя накручивают звездочку;
- за стяжками кронштейна закрепляют направляющую;
- после того, как будет надета и расправлена цепь, болты кронштейна плотно фиксируются.
После этого можно приступать к работе.
Вырезаю съемную панель



Моя идея заключается в том, чтобы вырезать часть столешницы и прикрепить ее к основанию циркулярной пилы. Благодаря этому ее можно будет установить на столе в перевернутом виде — лезвием вверх, как стационарную.
Приступаю к реализации идеи:
- Размечаю местоположение пилы, так, чтобы она оказалась между поперечинами снизу.
- По углам просверливаю 4 отверстия и зенкую их таким образом, чтобы в них помещались головки винтов с шайбами — они обеспечат фиксацию электроинструмента.
- С помощью лобзика вырезаю часть столешницы — она послужит площадкой для циркулярной пилы.
Используя ее как шаблон, изготовил вторую съемную панель под ручной фрезер.
Цепь
Цепь цепной пилы, вдетая в шину Цепь цепной пилы Цепь электрической и бензиновой цепной пилы ничем не различаются и изготавливаются из одного и того же заготовочного цепного материала, отрезанного и склепанного по необходимому количеству зубьев, используемому в данной цепной пиле.
Цепи можно разделить на два основных вида: продольного и поперечного типа. Для распила древесины вдоль и поперек волокон соответственно. Они отличаются в основном углами атаки режущих звеньев. Цепь состоит из звеньев трёх типов: режущие, ведущие (хвостовики) и соединительные. Правосторонние и левосторонние режущие зубья установлены поочередно. Кроме этого на цепи смонтированы ограничители глубины пропила.
В зависимости от разности размеров режущих зубьев и ограничителей глубины, цепи делят на низкопрофильные, у которых зазор меньше, и высокопрофильные, у которых зазор больше. Первые менее эффективны, но более безопасны. Они меньше склонны к обратному удару, когда пила отскакивает назад и может вырваться из рук. Поэтому на бытовых пилах разрешено использовать только низкопрофильные цепи, а профессионалы предпочитают высокопрофильные.
Шаг цепи определяет расстояние между соединительными заклепками звеньев.
Цепная пила, разрезающая бетон
Цепи для продольного пиления
Форма зуба любого режущего полотна для продольной и поперечной резки древесины отличается. Тоже касается и цепей бензопил. У ножовки или двуручной пилы для обычного, поперечного пиления зуб расположен прямо, под 90 градусов (по своей оси) к полотну.
У полотен для продольного пиления зуб наклонен вперёд. У цепей бензопил для продольного пиления другой угол заточки. В продаже можно найти такие цепи. Но требуются они достаточно редко, поэтому большого выбора их в свободной продаже нет. Приходится искать. К тому же среди разнообразия цепей для разных моделей и брендов подобрать подходящую цепь ещё труднее.
Пилить вдоль волокон (продольно) цепи с обоими (30 и 5 градусов) углами заточки будут примерно с одинаковой скоростью. Но при более остром угле для поперечного пиления в 30 градусов цепь склонна находить в древесине места с наименьшим сопротивлением между волокон и непредсказуемо уводить пропил в эту сторону. В итоге шина может выгибаться, делать кривой срез или заклинить.
Советы и рекомендации
- После сборки пилорамы немаловажным является тестирование на соответствие уровней и устойчивость всей конструкции.
- Для обеспечения точности распиловок целесообразно сделать разметку, для чего подойдет кусок старой рулетки, металлическая линейка.
- Цепи рекомендуется приобретать более долговечные — твердосплавные.
- Следует учесть, что должен быть свободный доступ для периодического натяжения цепи, поскольку при эксплуатации цепь растягивается довольно часто.
- На подвижной раме должна быть установлен защитный экран, подойдет любой прозрачный пластик.
- При изготовлении пилорамы из бензопилы обязательно нужно рассчитать, какой будет наибольшая и наименьшая длина бревен, чтобы короткие не провалились при распиловке, а длинные нормально зашли в направляющие.
- Не следует экономить на поворотных механизмах, управляющими положением бензопилы.
- Владельцам домашних пилорам следует помнить о необходимости строгого соблюдения требований техники безопасности при эксплуатации самодельной пилорамы из бензопилы.
- При выполнении пиления следует использовать приемы работы с бензопилой, учитывая при этом необходимость плавных движений, без принуждения и особых усилий.
Как правильно пилить доски на самодельной пилораме
Если мастер справился с изготовлением самоделки, то разобраться, как она работает, не составит большого труда. Однако при пилении нужны не только умения и навыки, но еще и соблюдение техники безопасности. Кроме того, нельзя работать с бензопилой без защитной амуниции, в основании которой входят очки, каска с наушниками, перчатки, специальный комбинезон и боты с железным носком. Инструкция по первому запуску и работе на пилораме из бензопилы следующая:
- Для начала нужно проверить установку. Все соединения должны быть надежными, а инструмент должен прочно крепиться к станине
- Перед закреплением инструмента на станине нужно убедиться в том, что бензобак и масляный бак имеют достаточное количество топлива. Баки должны быть полными, так как инструмент эксплуатируется под углом 90 градусов
- После прочного закрепления инструмента, нужно приступать к фиксации бревна. Даже если используется мобильная установка, то бревно должно быть надежно закреплено, чтобы в процессе воздействия инструментом, оно не смещалось и не вибрировало
- Выставляется необходимая толщина распила досок
- Запускается бензопила только после того, как она будет закреплена на станине. После этого нужно медленно подносить ее к заготовке
- Зафиксировать курок бензопилы на оборотах выше средних, и приступать к распилу. При пилении нужно быть внимательными, так как не исключается возникновение ударов
- Перемещать бензопилу нужно медленно, чтобы инструмент работал в половину нагрузки
Это важно! Распиливание досок на самодельной пилораме нужно осуществлять медленно и аккуратно, иначе малейшее неверное движение может стать причиной получения серьезных травм.
Ручная с рейсшиной
Глубоко и «длинно» пилить домашнему мастеру приходится нечасто, а ручная циркулярка и сама по себе штука полезная. Кроме того, ручной циркулярной пилой с направляющей-рейсшиной можно резать дерево и поперек, и вдоль волокон, и под любым углом. А длины реза до 1,5-2 м вполне достаточно для почти всех отделочных работ и овеществленного творчества.
Рейсшин для ручных циркулярок в продаже достаточно, и стоят они недорого, но универсальной нет. Принцип устройства фирменной рейсшины иллюстрирует рис.: опорная плита (башмак) пилы изготавливается с продольным пазом, а рейсшина штампуется с соотв. гребнем (показано стрелкой на рис.).
Использование ручной циркулярной пилы с направляющей-рейсшиной
В работе удобно: нужно только прижимать инструмент сверху, а вбок и на перекос он не уйдет. И в ходе конкурентной борьбы тоже удобно: делаем свои пилы так, чтобы на направляющие «партнеров» они не садились.
Неудобно мастерам – рейсшину подешевле не подберешь. А циркулярка с пазом под направляющую стоит несоразмерно дорого сравнительно с такой же, но с гладким башмаком. Любители делают наоборот: рейсшину с пазом из ламинированной фанеры, а к башмаку крепят пару бобышек (поз. 2б на большом рис. в начале). Но для этого, во-первых, нужен фрезерный стол по дереву, который надо еще сделать (непросто) или купить (за дорого). Во-вторых, и так небольшая глубина реза уменьшается на 16-20 мм. В-третьих, если инструмент еще гарантийный, то от сверления отверстий в башмаке гарантия сгорает. В-четвертых, если пила арендная, то ничего дорабатывать в ней нельзя.
Есть еще один способ, но инструмент в работе нужно будет удерживать в 3-х плоскостях: прижимать, от ухода вбок и от проворота. Фанерное основание направляющей с таком случае может быть тоньше, 6-8 мм. Собственно рейсшиной будет закрепленная на нем ровная рейка (или отрезок стального уголка и т.п.), см. след. рис.:
Как самому сделать направляющую для ручной циркулярки
«Наладка» приспособления сводится к тому, что циркуляркой просто отрезают лишнее от основания. Крепится такая направляющая к доске/листу материала струбцинами, как и фирменная. При работе на верстаке под основание подкладывают проставки толщиной чуть больше таковой материала; глубина реза от этого соотв. уменьшается.
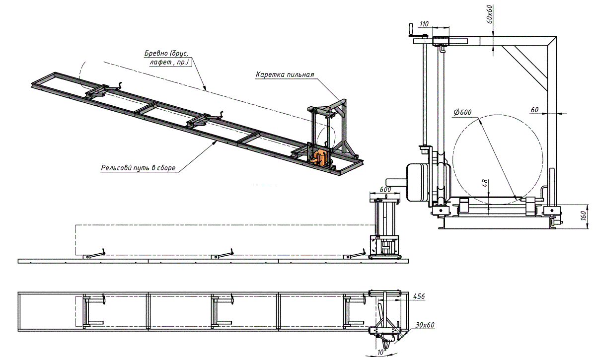
Минипилорама цепная МПЦ
Минипилорама цепная МПЦ: Сегодня, когда экологическая обстановка в мире стремительно меняется, когда площади лесных угодий охраняемых законодательством растут с каждым днем, что приводит к росту цен и нестабильности в области поставок сырья, актуальным становится вопрос самостоятельного получения пиломатериалов. Известно, что среди существующих способов обработки древесины, способ распиловки шиной является не самым экономичным и не самым высокопроизводительным. Но по сравнению с другими существующими видами лесопиления данный вид пилорамы является самым недорогим и удобным. Данная пилорама может легко разместиться прямо у Вас на дачном участке и при небольших затратах мощности Вы сможете получить необходимое количество любых пиломатериалов.
Пилорама МПЦ — предназначена для высококачественной продольной распиловки древесины любых пород заданной толщины. Может быть использована для получения шпона, лафета, обрезной, необрезной доски, бруса (обычного, сложного, трёх и многогранного сечения), распиловки тонкомера.
СПЕЦ.ЦЕНА СЕЗОНА ВСЕГО 45 000 РУБ. Отличительные особенности:
Высокое качество распиловки древесины; Точность; Компактность; Невысокая цена; Простота конструкции; Надёжность (отсутствует редуктор); Малый вес; Легкость транспортировки (на прицепе легкового а/м); Лёгкость установки (просто на ровной площадке);

Лёгкость настройки; Не даёт «волну, щетину»; Экономичность в эксплуатации (малое потребление эл/энергии, либо бензопривод); Экологически чистый и не шумный вид пилорамы; Безопасность; Долговечность; Быстрый ввод в эксплуатацию; Ресурс работы практически не ограничен; Возможность работы прямо в лесу на делянке или на дачном участке.
Стандартная комплектация:
Пильный узел – 1 шт.; Трёхфазный электродвигатель, мощностью 5,5 кВт — 1 шт.; Шина или «Stihl» – 1 шт.; Цепь продольной заточки или «Stihl» микро продольного пиления – 1 шт.: Рельсовый путь – 2 шт. х 4,0 м; Прижим бревна боковой — 2 шт.; Боковые упоры (флажки) – 5 шт.; Крепёж (комплект болтов, шайб, гаек); Паспорт на электродвигатель – 1 шт.; Руководство по эксплуатации – 1 шт.
Выбор бензопилы для домашней пилорамы
Основная деталь установки — цепная пила и к ее выбору нужно отнестись со всей внимательностью. Установить вы можете как новую, только что купленную пилу, так и бывшую в употреблении, типа марки “Урал”. Использовать для создания пилорамы можно не только бензопилу, но и электропилу. Единственное, о чем нужно помнить, вы будете ограничены в движениях из-за длины сетевого кабеля.

Для правильного подбора пилы важно изначально понимать целевое назначение установки. Для полупрофессионального, коммерческого использования отдавайте предпочтение стационарным пилорамам с мощными и производительными пилами. Бытовое применение оборудования позволяет выбрать менее мощную бензопилу, создав своими руками мобильную мини пилораму по чертежам из интернета
Бытовое применение оборудования позволяет выбрать менее мощную бензопилу, создав своими руками мобильную мини пилораму по чертежам из интернета.
Техника безопасности при работе с пилой
Электрическая пила достаточно производительна и в процессе работы может причинить оператору травму. Реальные случаи обрезки пальцев и других частей тела свидетельствуют о повышенной опасности, поэтому игнорировать предостерегающие правила не стоит.
• Перед включением пилы следует проверить её исправность, целостность электрокабеля, уровень масла.
• Приступать к работе можно исключительно в трезвом состоянии. Нельзя пользоваться инструментом при плохом самочувствии или после принятых сильнодействующих препаратов.
• Одежда из плотной ткани должна прилегать к телу, чтобы торцы не попали под работающий узел. Обувь выбирается специальная, полностью покрывающая ноги до лодыжки. Для защиты глаз от щепы и пыли рекомендуется надевать очки.
• При работе пилу следует держать обеими руками.
• О плоскости пропила нужно отводить туловище. Для этого достаточно сместить инструмент слегка в бок.
• При переносе пилы двигатель выключают.
Как из болгарки сделать электропилу?
Для изготовления цепной пилы на основе болгарки конструктору будут необходимы:
- полностью исправная и обслуженная болгарка;
- металлическая ведущая звездочка – лучше всего заранее купить новую деталь;
- кусок металла, который потребуется для сборки кронштейна – он нужен для монтажа направляющей;
- новые шина и цепь;
- дрель, сварочный аппарат и другое оборудование;
- комплект разных по размерам болтовых соединений.
Алгоритм действий во время сборки электропилы из болгарки должен быть таким:
- Сначала с болгарки потребуется снять установленный режущий диск и проделать в нижней части ее защитного кожуха небольшое аккуратное отверстие. Далее необходимо соединить защитный щиток с кронштейном;
- После этого нужно накрутить ведущую звездочку на вал силового агрегата болгарки;
- Затем потребуется установить режущие органы для электропилы. Их нужно закрепить позади стяжек кронштейна;
- После монтажа и регулировки натяжения цепи необходимо плотно затянуть крепежные болты металлического кронштейна.
Сделанная своими руками цепная электропила из болгарки должна быть тщательно протестирована. Сначала оборудование нужно проверить при работе на холостом ходу. Если она не издает посторонних звуков и не искрит, значит можно приступать к работе с тонкой и средней по толщине древесиной.
Во время дальнейшей эксплуатации электропилы на основе болгарки важно помнить, что этот самодельный прибор выделяется низким уровнем безопасности для здоровья оператора и окружающих. У агрегата полностью отсутствует механизм, защищающий пользователя от отдачи
Из-за этого при работе с пилой постоянно присутствует риск получения телесных травм.
Кроме того нельзя забывать, что силовой агрегат от болгарки часто перегревается. Чтобы не допустить этого, нужно делать перерывы каждые 10 минут, давая двигателю по 5 минут для остывания.
Пилорама из бензопилы своими руками: видеоинструкция и чертежи
Пилорама из бензопилы — вариант №1
Для изготовления конструкции кроме бензопилы понадобятся:
- два швеллера длиной в 8 метров и высотой в 140-180 миллиметров;
- две рельсы;
- уголки 50х100 мм и 40х40 мм;
- отрезки водопроводной трубы в 25 см в качестве стяжек;
- плита из стали толщиной в 4-6 см и длиной в 60 см;
- подвижные шланги;
- трубы с диаметром в 35-40 мм.
Изготовление своими руками пилорамы следует начинать со сборки основания из перевернутых подошвой вверх рельс и уголков 50х100 мм. Устанавливаться они должны строго параллельно полу, поэтому нужно воспользоваться строительным уровнем.
Далее выполняются следующие работы:
- По длине основания, согласно чертежу, сверлятся отверстия с шагом в 1-1,5 метра и диаметром в 14-16 мм.
- Затем по количеству отверстий берутся стяжки, которые соединяются при помощи болтов.
- Из металлических угольников изготавливаются стойки и на них ставится основа. Расстояние между крайними стойками и основой должно быть около 100 см.
- Чтобы конструкция была более жесткой, раскосы между стойками можно приварить.
снизу стальной плиты приваривается уголок
На последнем этапе работ по изготовлению самодельной пилорамы необходимо сделать конструкцию для фиксации бревен. Для этого подвижные шланги и трубы следует расположить на необходимой высоте и закрепить их.
Первый вариант самодельной пилорамы из бензопилы готов. Существует еще один способ изготовления своими руками агрегата для обработки древесины. Инструменты и чертеж для него понадобятся те же, однако, сама конструкция более доработана.
https://youtube.com/watch?v=KxtDdf-N3pY
Пилорама из бензопилы своими руками – вариант №2
- Пилы с приводом.
- Механизма для регулирования толщины изготавливаемой доски.
- Механизма для передвижения пильной части конструкции.
- Устройства для фиксации бревен.
Так как бензопила с рабочим двигателем и режущими зубьями в уже есть в наличии, необходимо будет сделать своими руками только оба механизма и устройство для фиксации бревен.
Механизм для регулирования толщины досок.
Распиливаются бревна посредством поднимания или опускания основания, которое должно быть приварено к пластине с помощью четырех гаек с согнутыми краями. Вверху этого устройства необходимо установить контргайки, которые нужно затягивать после того, как агрегат будет настроен на нужную толщину обрабатываемого материала.
Механизм для передвижения пилы.
Пила в конструкции перемещается вдоль рамы по направляющим уголкам, расстояние между которыми должно быть в 50 см. К стойкам необходимо приварить два ролика или подшипника на 20 мм. Нижний ролик должен удерживать пилораму от подъема, а верхний следует опереть на направляющий уголок.
Устройство для фиксации бревна.
На таком агрегате бревна крепятся с помощью двух гребней – неподвижного и перемещающегося посредством винта. После того как материал для обработки будет установлен, перемещающийся гребень винтами закрепляется в неподвижном состоянии. Теперь можно начинать смело эксплуатировать самодельную пилораму, выполненную из бензопилы.
Основные этапы работ
Первым делом вырезаем корпус, к которому будет крепиться электродвигатель. Затем на токарном станке вытачиваем стальной шкив на ведущий вал двигателя. Для изготовления самодельной аккумуляторной электропилы потребуется шина небольших размеров и отрезок цепи подходящей длины.
Затем необходимо изготовить деревянную рукоятку, в которой надо будет просверлить отверстие и установить кнопку включения/выключения питания.
На следующем этапе из аккумуляторных батарей 18650 делаем целый аккумуляторный блок 24V. Контактные пластины привариваем с помощью контактной сварки. Полного заряда аккумулятора хватит на один час непрерывной работы электропилы.
Критерии выбора инструмента
Прежде чем приступать к изготовлению стационарного станка для распила древесины следует определиться с критериями выбора ручной дисковой пилы. К ним относятся:
- мощность двигателя. Ее необходимо подбирать в зависимости от планируемых работ. Мощная пила отлично справится даже с самыми твердыми породами древесины, но будет иметь большой вес. Для бытового использования подойдут дисковые пилы с мощностью 1 – 1,6 КВт;
- глубина распила. Напрямую влияет на производительность инструмента. Для нечастого бытового использования подойдет пила с глубиной распила 54 мм;
- частота вращения диска. От этого критерия зависит чистота распила. Чем она выше, тем более чистый срез получается. Следует помнить, что с увеличением частоты вращения снижается скорость распила заготовок. Среднее количество оборотов пильного диска бытовой пилы составляет 4,5 – 5,5 мин-1;
- дополнительные функции. Немаловажными факторами, влияющими на выбор ручной дисковой пилы, являются наличие системы плавного пуска, защиты от перегрузок и случайного включения, а также изменения угла распила.
Материалы для изготовления циркулярного станка
Компоненты циркулярной пилы
После составления оптимального чертежа для изготовления стационарного оборудования своими руками необходимо подобрать расходные материалы. Для этого можно закупить металлопрокат либо использовать имеющиеся компоненты.
Основной проблемой является выбор силового агрегата. Некоторые рекомендуют устанавливать заводскую модель ручной дисковой пилы. Однако зачастую они не обладают должной мощностью для обработки больших объемов древесины. К тому же ограничение по диаметру диска уменьшит функциональные возможности оборудования. Поэтому лучше всего выбрать чертежи, в которых присутствует два отдельных блока — электродвигатель и вал для крепления диска.
Соединение несущих элементов рабочего стола выполняется с помощью сварки своими руками. Механические узлы не обеспечат должный показатель надежности, так как из-за постоянной вибрации сформируется люфт.
Рекомендации по выбору стационарного станка-пилы своими руками:
- стол. Для ножек можно использовать стальные уголки 30*30 или 40*40 мм;
- столешница. Она изготавливается из плотного ДСП, хотя специалисты считают оптимальным вариантом применение стального листа. В этом случае в верхней части стола делается решетчатая конструкция;
- электродвигатель. Можно применять любую бытовую модели асинхронной силовой установки 220 В, мощность которой не превышает 1,5 кВт, а максимальное количество оборотов составляет 2400 об/мин.;
- система шкивов для передачи крутящего момента на валу с диском. Шкивы лучше всего взять заводские. Обязательно должна быть предусмотрена система натяжки.
Для фиксации заготовки по длине необходимо предусмотреть опорную планку. Она должна смещаться относительно плоскости диска, регулируя тем самым своими руками ширину обрабатываемой доски.
Перед сваркой все стальные заготовки должны быть очищены от ржавчины. Покраска выполняется только после окончательного изготовления станка-пилы своими руками.
Этапы монтажа цепной пилы
• с болгарки снять пильный диск;
• в нижней части металлического кожуха устройства сделать отверстия;
• из листа металла (толщина 5-7 мм) вырезать кронштейн (форма детали представляет собой круг со скошенной одной стороной, двумя отверстиями под болты для крепления пилы и одним большим отверстием, соответствующим диаметру вала болгарки);
• с помощью болтов закрепить кронштейн к защитному щитку болгарки (где предварительно были сделаны отверстия);
• на вал мотора накрутить звёздочку;
• зафиксировать направляющую за стяжками кронштейна;
• надеть и расправить цепь, плотно затянуть болты на кронштейне, обработать соединения сваркой для повышения прочности;
• сделать тестовый пуск.





































